堺市南区美木多上 戸建

2,580万円

大阪府堺市南区美木多上

南海電鉄泉北線「光明池」駅バス9分南海バス「光明台1丁目」停歩6分

南海電鉄泉北線「光明池」駅徒歩36分

価格
2,580万円
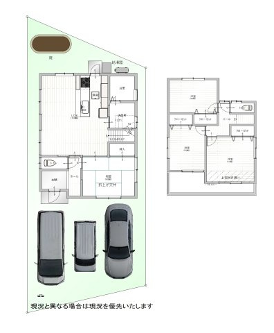
間取り
4LDK
土地面積
121.88㎡
所在地
大阪府堺市南区美木多上
交通

南海電鉄泉北線光明池」駅 バス9分 南海バス「光明台1丁目」 停歩6分

南海電鉄泉北線光明池」駅 徒歩36分

建物面積
120.42㎡
築年月
2014年5月(築11年)

物件の特徴

  • 浴室乾燥機

セールスポイント

こだわりポイント満載の堺市南区美木多上 戸建。4LDKの物件で快適な日々を過ごしましょう。和泉市周辺で不動産情報をご紹介する当社は、お客様のお住まい探しにお役に立つようがんばります。まずはこちらのお家は室内非常に丁寧にお使いです。その他ご希望条件をスタッフまでお聞かせ下さい。

ポイント

全居室収納 浴室乾燥機 バイク置場 インナーバルコニー サンルーム

担当者のコメント

綺麗な室内の中古戸建て物件で素敵な日々をおくりませんか。多くの方に好評の物件で、平成26年5月築となっています。皆で仲良く生活できる4LDKの物件情報はこちらです。住宅ローンを含めて、お客様の住まい探しをサポート致します。堺市南区で不動産の購入を検討しているのであれば、お気軽にお問い合わせください。

基本情報

販売戸数
-
総戸数
-
間取り / 詳細
4LDK
LDK 16.6帖 1室/LD 6.0帖 1室/洋室 6.0帖 2室/洋室 5.5帖 1室
向き
-
建物面積(坪数)
120.42㎡(36.42坪)
土地面積(坪数)
121.88㎡(36.86坪)
建ぺい率 /
容積率
60%/200%
築年月
2014年5月(築11年)
駐車場 /
月額料金
有 0円
土地権利
所有権
土地
(敷金 / 保証金)
- / -
建物構造
木造 / 2階建
傾斜地部分面積
-
路地状敷地
-
私道負担面積
-
セットバック
高圧線下面積
-
施工会社
-
用途地域
無指定
地目 / 地勢
宅地 / 平坦
接道状況
一方(南西 公道 5.7m 間口 4.6m)
国土法届出要否
不要
都市計画
市街化調整区域
総区画数 /
販売区画数
-/-
現況
居住中
その他
法令上の制限
-
取引態様
仲介
引渡し
相談
取引条件の
有効期限
2026年02月24日

設備条件

設備条件
  • 駐輪場 / バイク置場あり / インナーバルコニー / システムキッチン / 浴室乾燥機 / 温水洗浄便座
設備(その他)
    -

その他

物件番号
93959083
管理コード
-
建築確認番号
-
情報更新日
2026年02月10日
次回更新予定日
2026年02月24日
取扱会社
  • 南大阪不動産株式会社
  • 大阪府和泉市肥子町2丁目3-31 あすかビル 203
  • TEL:072-489-4680
  • 大阪府知事 (1) 第063968号
  • (公社)全日本不動産協会
    (公社)不動産保証協会
    (公社)近畿地区不動産公正取引協議会加盟
備考
徒歩31分の距離に堺市立美木多中学校があるのも魅力。価格2,580万円の物件で、ゆとりのある豊かな生活を。15帖以上のLDKとなっており、家族団らんの場としても適した広さです。堺市南区に特化した当社には、不動産情報はもちろんのこと、地域情報にも詳しいスタッフが在籍しております。きっと不動産探しの強い味方となるでしょう。

周辺施設

  • 堺市立美木多中学校の画像

    中学校

    堺市立美木多中学校

    2427m(31分)

  • 堺市立美木多小学校の画像

    小学校

    堺市立美木多小学校

    2757m(35分)

支払いシミュレーション

月々の支払額
9.6
購入希望物件価格
万円
頭金
万円
金利
%
返済額(ボーナス1回分)
万円
返済期間

※ボーナスは自動で年2回分で計算されます。

近隣の物件

  1. 堺市南区檜尾 太陽光発電 駐車3台可能

    堺市南区檜尾

    4SLDK (93.96㎡)

    1,980万円

堺市南区美木多上 戸建

堺市南区美木多上 戸建

2,580万円

-

4LDK(120.42㎡)

お気軽にお問い合わせください

LINEからお問い合わせ 無料お問い合わせ

南大阪不動産株式会社

072-489-4680

9:00~20:00

(休:無し。スタッフ不在の場合もございます。ご来店前にお電話ください。)